7826 Topanga Canyon Boulevard #217

Canoga Park, CA 91304

$ 402,000

Price

2

Beds

2

Baths

910 Sq. Ft.

$442 / Sq. Ft.

525 Days On Market

Favorite

Share

Elkwood Terrace Building

Have You Been Pre-Qualified? Start Now

Listing provided by agent Qi Wang BRE# 02143384 at Beverly And Company Inc..

Last Updated: 446 days ago

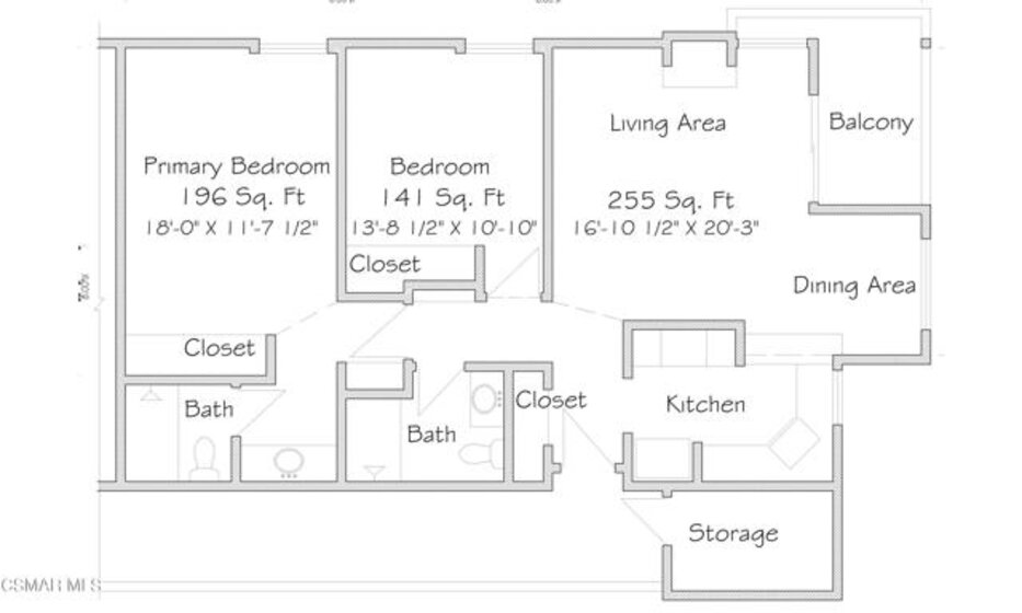
Charming, private end unit in the highly sought after Elkwood Terrace community. This building is built on steel beam as a base which is solid construction quality comparing to others. It has two elevators which is rare but extremely convenient for people who wants to avoid steps. This second floor secluded beauty feels like a small home with open floor plan and private patio facing east. Recently updated kitchen with stone counters, splashback tiles, wood cabinets, stainless steel sink, dishwasher, brand new stove and microwave, all in one washer dryer combo. water heater in 2023. New painting, crown molding and carpet. Perfect floor plan as described in the picture. Private primary suite with its own bath has big closet and a large tub with a shower. The hallway bathroom has a very generous sized shower, updated vanity with granite counter. The second bedroom has great closet space. Tons of closets and a big storage room just outside of the unit! Two tandem assigned parking. The community has a lovely pool deck with a pool, spa, lounge area and fitness center surrounded by trees and lush greenery. And it is steps away from the famous Faith Baptist School in Canoga Park! HOA fees includes water, trash, sewer and earthquake insurance! Come and take it as your future home.

Show More
Property Type Condominium
Lot Size 96,193 sq. ft.
Year Built 1986
MLS # 224001933
Listing Type Closed
Pool Community, In Ground
Gated Community No

Payment Calculator

40% Complete (success)
80% Complete (danger)
20% Complete
80% Complete (danger)
60% Complete (warning)
Principal and Interest
Property Taxes
Homeowners' Insurance
HOA Dues
Mortgage Insurance
Image Calculator Icon Customize Calculations | Compare Mortgage Rates

Property Details for: 7826 Topanga Canyon Boulevard #217

Interior Features

Bathroom Information
  • 2 full baths
Fireplace Information
  • Gas Starter
  • Living Room

Parking / Garage, Multi-Unit Information, Location Details

Community Features
  • Units in Complex (Total) 50

Exterior Features

Pool & Spa Information
  • Community
  • In Ground
  • In Ground
Building Information
  • Total Floors: 3

Property / Lot Details

Lot Information
  • Lot Size (Sq. Ft) 96,193
Property Information
  • Attached
  • Tax Parcel Number: 2110012099

Recently Sold Homes Near 7826 Topanga Canyon Boulevard #217

Nearby Businesses

  • Grocery Stores
  • Drug Stores
  • Coffee Shops
  • Restaurants
  • Health & Medical
  • Fitness & Activity
  • Arts & Entertainment
  • Nightlife & Bars
    Browse all businesses in Canoga Park, CA, 91304

    Tour This Condo

    FRIDAY

    5

    DEC

    SATURDAY

    6

    DEC

    SUNDAY

    7

    DEC

    MONDAY

    8

    DEC

    TUESDAY

    9

    DEC

    WEDNESDAY

    10

    DEC

    THURSDAY

    11

    DEC

    Schedule A Tour
    Ryan Case, Licensed Realtor & Team Lead

    Ryan Case

    Licensed Realtor & Team Lead

    213-449-4909 Contact Ryan Case
    Listing provided by agent Qi Wang BRE# 02143384 at Beverly And Company Inc..

    Last Updated: 446 days ago

    Similar Condos For Sale

    For Sale

    $ 460,000

    2 beds, 2 baths, 917 sq.ft.

    7826 Topanga Canyon Boulevard #301 ...
    View All 49 Condos